Skip to main content

Hardware Designer & Manufacturer

The accessory that enhances your style

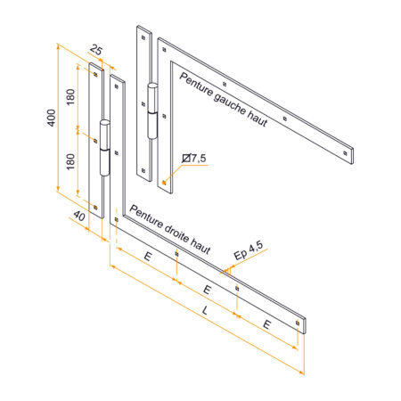
Set of 2 angle T strap hinges – square end – Ø12 – H.400 – 40×6 – 7.5 mm square holes

Références

SKU L Content CD No. of holes Finishing stage Pkg Delay (d)
1KI92089G 600 left up + left down 187 3+6 9005-30% 1 21
1KI92089D 600 right up + right down 187 3+6 9005-30% 1 21
1KI92090G 700 left up + left down 165 3+7 9005-30% 1 21
1KI92090D 700 right up + right down 165 3+7 9005-30% 1 21
1KI92091G 800 left up + left down 190 3+7 9005-30% 1 21
1KI92091D 800 right up + right down 190 3+7 9005-30% 1 21
1KI92092G 1000 left up + left down 192 3+8 9005-30% 1 21
1KI92092D 1000 right up + right down 192 3+8 9005-30% 1 21

Information

Commentaire

Made of steel
Pack composition:
1 top-angle T strap hinge
1 bottom-angle T strap hinge
Astuce

Astuce

The orientation (e.g. left up + left down) of the T strap hinges is given from the outside view (street side).

Place an order

Your contacts for all your purchases

Jean-Claude FERNANDES
Export Sales Manager
Isabelle ROUSSEL
Export Sales Assistant

Related products